LOT 15
GUIDE PRICE: £55,000 - £60,000
102 Brand Lane, Stanton Hill, Sutton-in-Ashfield, Nottinghamshire, NG17 3GH
Solicitor Details
Browne Jacobson, Mowbray House, Castle Meadow Road, Nottingham NG2 1BJ Tel: (0330) 045 2242 ~ Ref: R Patel
*Guide Price & Reserves
RESIDENTIAL
EMH Housing & Regeneration Ltd
Property Description
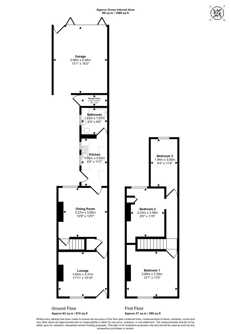
A terrace property with 3 bedrooms, gas central heating, double glazing and parking at the rear. The property requires modernisation.
Location:
The property is located just off the junction of High Street and Stoneyford Road.
Accommodation:
Ground Floor: 2 reception rooms, kitchen, bathroom.First Floor: 3 bedrooms.
Outside: Rear garden with store, covered car port with double doors accessed over a shared service road to the right hand side of No. 101.
Note:
- The property requires modernisation
- No offers will be accepted on this lot prior to the auction
- The sale will be subject to the Buyer paying the Seller's legal and Auctioneer’s fees
Tenure
Freehold.
Energy Performance Certificate:
Rating 74, Band C.
Generally speaking Guide Prices are provided as an indication of each seller's minimum expectation. They are not necessarily figures which a property will sell for and may change at any time prior to the auction. Virtually every property will be offered subject to a Reserve (a figure below which the Auctioneer cannot sell the property during the auction) which we expect will be set within the Guide Range or no more than 10% above a single figure Guide.

