LOT 07
Sold for £268,000
8 Guildhall Lane, Leicester, LE1 5FQ
Solicitor Details
Salusbury Harding & Barlow LLP, 1 Berridge Street, Leicester LE1 5JT Tel: (0116) 262 6052 ~ Ref: S Swift
*Guide Price & Reserves
PERIOD RESIDENTIAL
Property Description
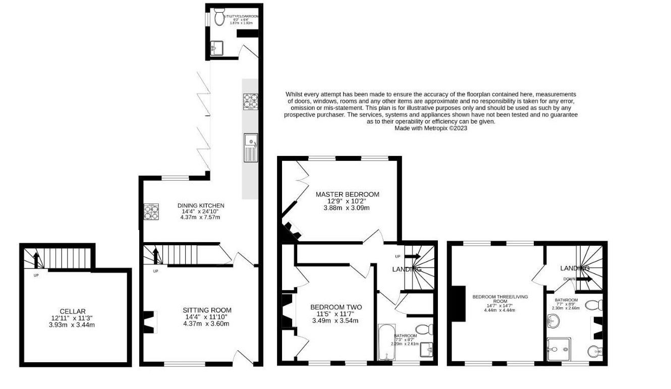
A well presented period 3 storey Grade II Listed family home with cellar, 3 bedrooms, 2 bathroom/shower rooms. The property retains many of its original features including sash windows with original shutters, exposed beams and fireplaces.
Location:
The property is located within the Greyfriars Conservation Area and close to St Martins Square and St Martins Cathedral.
Accommodation:
Cellar: Storage.Ground Floor: Lounge with original inglenook fireplace with wood burner, open plan kitchen/diner with 3 panel bifold doors to courtyard garden, WC.
Tenure
Freehold.
Energy Performance Certificate:
Pending.
Extra Details
First Floor: 2 bedrooms, bathroom.Second Floor: Bedroom 3 or living room, shower room.
Outside: South facing rear courtyard garden with raised rear terrace.
Generally speaking Guide Prices are provided as an indication of each seller's minimum expectation. They are not necessarily figures which a property will sell for and may change at any time prior to the auction. Virtually every property will be offered subject to a Reserve (a figure below which the Auctioneer cannot sell the property during the auction) which we expect will be set within the Guide Range or no more than 10% above a single figure Guide.

