LOT 03
Postponed until Auction 11 February 2026
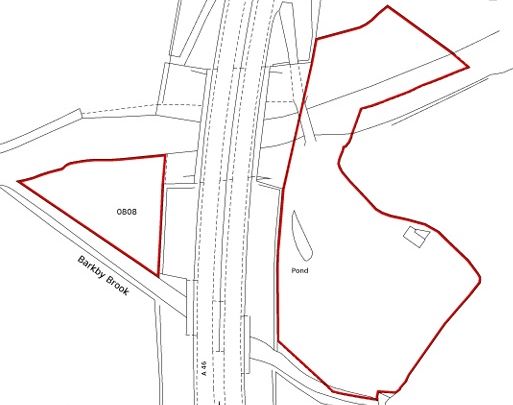
Land to the north side of Meadow Lane, Syston, Leicester, LE7 1NR
Solicitor Details
Rajinder Singh & Co, 85 London Road, Leicester LE2 0PF Tel: (0116) 254 5929 ~ Ref: R Singh
*Guide Price & Reserves
LAND
Addendum
Postponed until Auction 11 February 2026
Property Description
Two parcels of land totalling approximately 2.199 acres (10,643 sqyds). There is potential for alternative uses subject to planning.
Location:
The property is located off Glebe Way, near to the Hobby Horse roundabout and extends from adjacent to The Old Stables.
Planning
Local Authority: Charnwood Borough Council (01509) 634570.
Tenure
Freehold.
Generally speaking Guide Prices are provided as an indication of each seller's minimum expectation. They are not necessarily figures which a property will sell for and may change at any time prior to the auction. Virtually every property will be offered subject to a Reserve (a figure below which the Auctioneer cannot sell the property during the auction) which we expect will be set within the Guide Range or no more than 10% above a single figure Guide.

