LOT 16
GUIDE PRICE: £130,000 - £140,000
69 & 69A Whitehill Road, Ellistown, Coalville, Leicestershire, LE67 1EN
Solicitor Details
Arch Law, Suite 215, Northlight House, Pendle Road, Lancashire BB9 5FL Tel: (01282) 222802 ~ Ref: C Morris
*Guide Price & Reserves
COMMERCIAL / RESIDENTIAL / DEVELOPMENT / PART INVESTMENT
Property Description
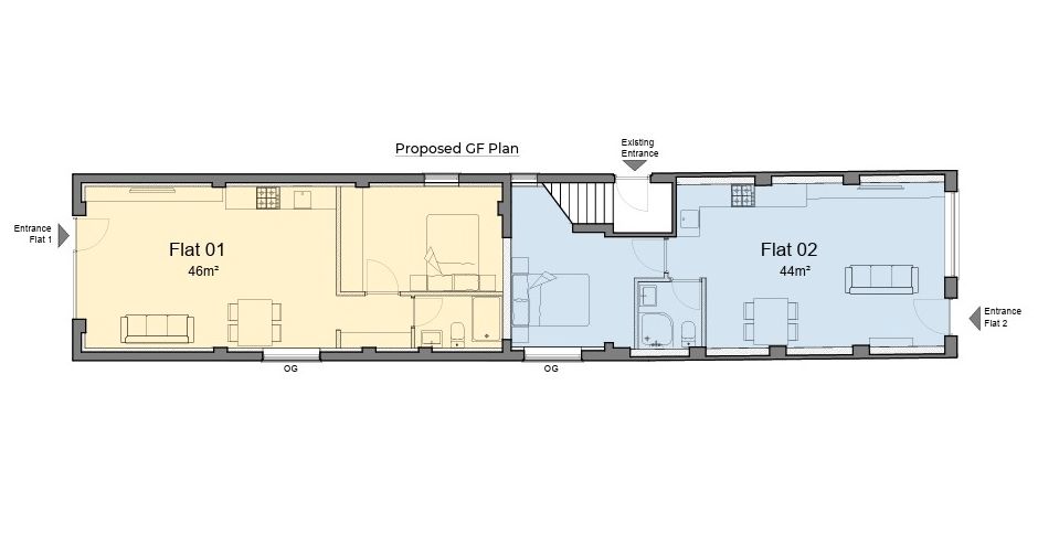
A 2 storey detached property with ground floor workshop and a two bedroom self contained flat above. Planning permission has been granted to convert the ground floor into 2 self contained flats.
Location:
The property is near to Ellistown Primary School.
Planning:
- Planning permission has been granted to convert the ground floor into 2 self contained flats comprising 1x1 bedroom and a studio flat
- Planning Permission No
- 25/00383/FUL dated 09.05.2025
- Local Authority: North West Leicestershire (01530) 454665
Tenure:
Freehold, subject to existing tenancy.
FLOOR
ACCOMMODATION
SQFT (SQM)
EPC
LEASE/ AST[/colour]
RENT £ PAX[/colour]
G/F
Workshop
1,130 (105)
pending
vacant
F/F - side access
Lounge, kitchen, bathroom, 2 bedrooms
678 (63)
56, D
6 months from 01.11.2025
7,800
Outside
Front and rear forecourts, rear loading
Current Rental Value
7,800
Generally speaking Guide Prices are provided as an indication of each seller's minimum expectation. They are not necessarily figures which a property will sell for and may change at any time prior to the auction. Virtually every property will be offered subject to a Reserve (a figure below which the Auctioneer cannot sell the property during the auction) which we expect will be set within the Guide Range or no more than 10% above a single figure Guide.

